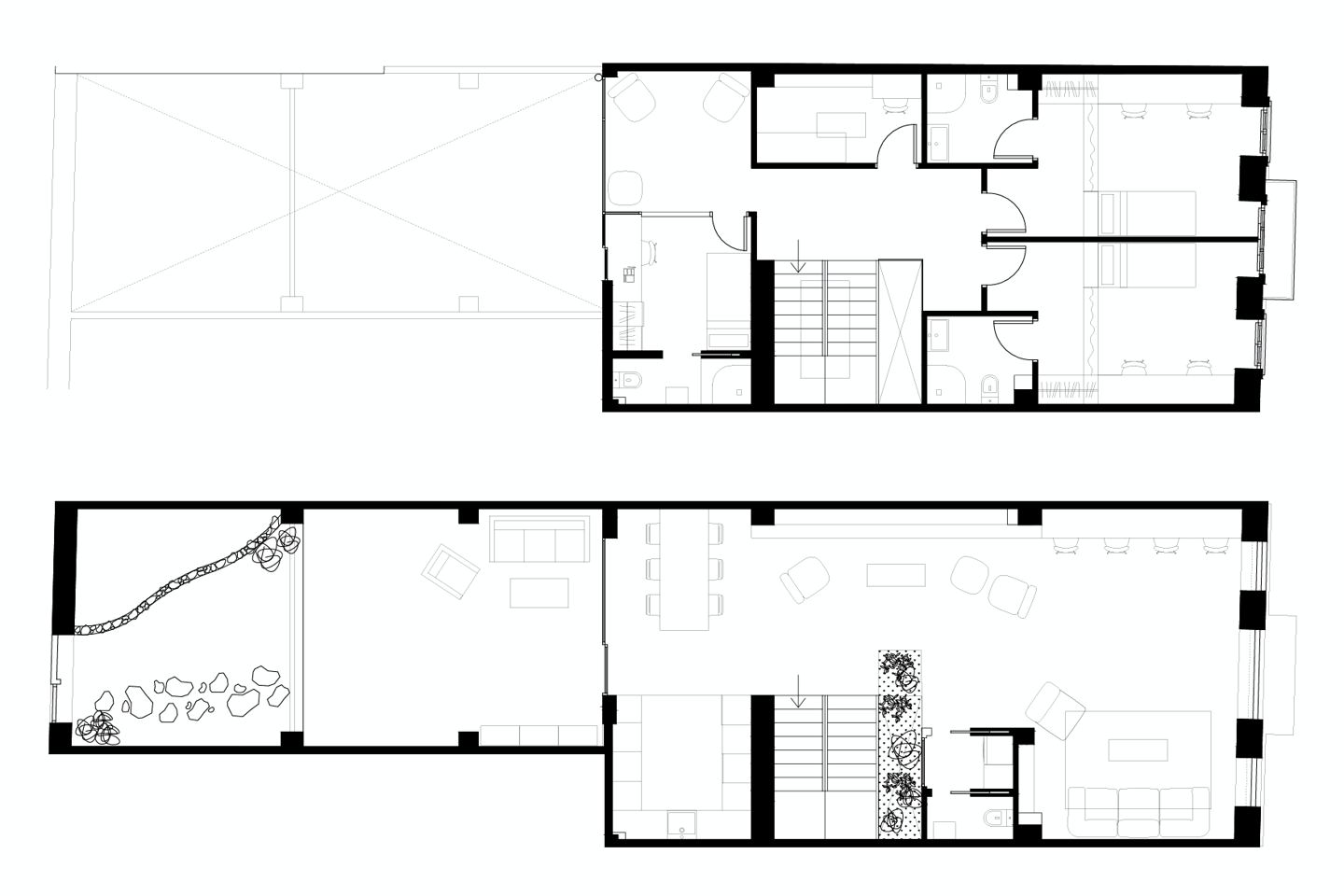
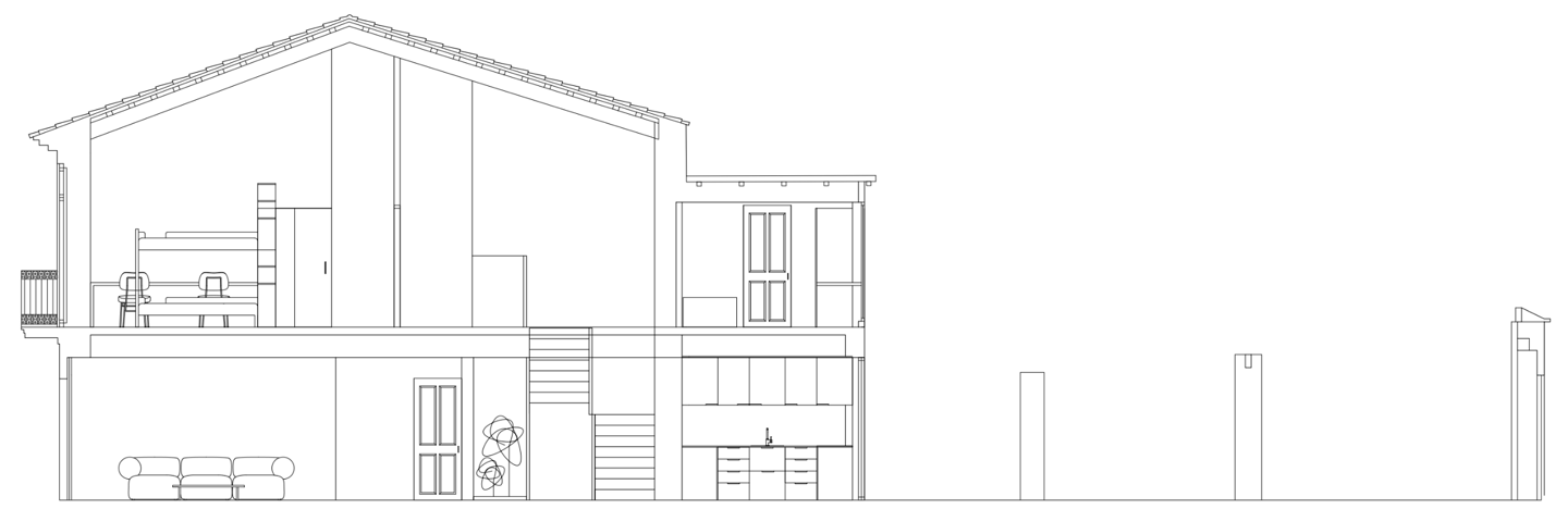
REFUGIO


VIVIENDA SOCIAL
El proyecto se basa en el concepto de refugio: un entorno seguro, acogedor y libre de prejuicios que acompaña a los residentes en su proceso de rehabilitación. Más que un lugar para vivir, se concibe como un apoyo integral que ofrece seguridad física, emocional y social.
















